Не Горят Задние Противотуманные Фонари Рено… Реле дворников
Типы освещения от фар
В ПТФ используется два основных физических эффекта, которые помогают видеть дальше.
- Туман, даже поземный, не стелется прямо по полотну дороги. В связи с тем, что температура асфальта всегда выше, чем почвы, туман приподнимается над дорогой. Таким образом, противотуманки, которые устанавливаются на высоте от 25 см, светят не в туман, а под него.
- Обычные фары, светящие вперед, отражаются от капель водяной взвеси и слепят глаза водителя. Специализированные приборы светят под другим углом, и их свет отражается в нейтральную зону.
На основании этих законов оптики и необходимо выбирать и производить грамотную установку или замену противотуманных фар. В Меган необходимость в их установке может возникнуть, если они не были предусмотрены комплектацией или не устраивают качеством.

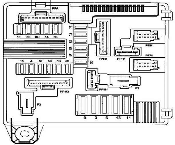
Блок предохранителей Рено Сценик 2 и реле: схемы, расположение, распиновка
- Придется разобрать рулевое колесо так, чтобы появился доступ к электронному блоку и демонтировать его, отключив разъемы с проводами.
- Снимите два белых переключателя, которые легко потерять, и отщелкните заднюю крышку блока.
- Теперь можно открутить два шурупа крышки левого подрулевого переключателя и снять ее.
- Демонтируйте переключатель и кольцами разбирайте корпус, чтобы добраться до заблокированного кольца переключения противотуманных фонарей. Во время разборки смотрите, какие положения переключателей являются средними.
Не горит задний ход: самая частая причина, устраняем своими руками Плавкий защитный элемент Сценик 2 находится в подкапотном блоке и имеет номер В7. Его мощность равна 7,5 Амперам.
Лайфхак номер два и обнаглевшие продавцы
Парктроник пишет ошибку Е4. Нужно менять все четыре датчика или только четвёртый? Пользуясь «лайфаком пальца», с грустью признаём, что все четыре датчика у нас помершие. Справедливости ради замечу: я это подозревал и раньше, потому что видел сначала надпись Е3, потом – и Е4.
Покупать оригинальные датчики – поступок мужественный, но странный. Сейчас весь этот парктроник стоит около двух тысяч рублей, а стоимость одного оригинального датчика в магазине – от 500 до 900 рублей. То есть даже комплект самых дешёвых датчиков будет стоить как вся система.
В качестве альтернативы на рынке есть множество производителей (сами догадайтесь, из какой страны), которые продают эти датчики вёдрами на развес. Я, например, купил универсальные датчики по 150 рублей за штуку. Причём купил я их в Интернете, потому что такие же с тем же артикулом мне в соседнем магазине пытались продать за 450 рублей за штуку. Мда.
Диаметр датчиков бывает разным, приблизительно от 18 до 22 мм. Поэтому прежде чем их покупать, нужно узнать, какие стоят на машине. Для этого их надо вытащить из бампера и замерить.

Итак, измеряем датчик. Мой – 18,0 мм. Вот такие и покупаем. Обратите внимание, что они бывают разных цветов. Проще всего купить чёрные и серебристые, но в Интернете можно заказать любые. Кстати, датчики можно потом покрасить. Но очень аккуратно, не заливая краской зазор около мембраны и не оставляя подтёков краски на его поверхности. В общем, проще купить сразу нужного цвета.
Итак, датчики у нас есть, желание открыть парктронику веки – тоже (вы же читали когда-то Гоголя, так ведь?) Погнали!
Блок предохранителей Рено Сценик 2 и реле: схемы, расположение, распиновка
Выбор и замена противотуманок на Рено Меган 2: пошаговый мануал Рассмотрим более подробно выполнение этих манипуляций.
Проверка работоспособности
При обнаружении поломки требуется произвести проверку:
Датчик-лягушка
- Установить автомобиль на смотровую яму или эстакаду.
- Заглушить двигатель и зафиксировать машину стояночным тормозом или противооткатными упорами.
- Осмотреть картер коробки скоростей, датчик располагается на тыловой стенке. На части агрегатов рядом устанавливается сенсор определения скорости, который передает сигнал электронному спидометру.
- Снять штекер с разъема датчика и осмотреть контакты.
- При помощи отрезка провода или скрепки замкнуть металлические элементы внутри колодки.
- Включить цепь зажигания. Если проводка находится в исправном состоянии, то должны сработать сигнальные лампы.
Включение сигнализаторов указывает на неисправность датчика управления, который требуется выкрутить из картера и заменить. Если индикаторы не загорелись, то причиной дефекта может стать сенсор или электропроводка.
Для тестирования датчика используется лампа, рассчитанная на напряжение 12 В, установленная в патроне с коммутационными кабелями. Индикатор присоединяется к клеммам сенсора при включенной передаче заднего хода и активном зажигании. Если лампа не включилась, то датчик нуждается в замене или регулировке.

Целостность цепи
Регулировка выключателя на КПП
Если в конструкции датчика не предусмотрена контргайка, то корректировка положения производится шайбами. Толщина пакета прокладок подбирается опытным путем при включенной задней скорости. Следует помнить, что большое количество шайб сокращает длину резьбы, удерживающей корпус сенсора в картере.
На автоматических коробках встречается датчик заднего хода, совмещенный с индикатором нейтрального или стояночного положения. Дополнительная индикация необходима для разрешения запуска двигателя только при разомкнутой кинематической цепи. Подобная конструкция используется на части трансмиссий, также встречается переключатель в селекторе, который регулировке не поддается.
- Демонтировать штекер и определить назначение контактов по маркировке или электрической схеме автомобиля.
- Включить зажигание и перевести рычаг селектора в положение движения на задней передаче.
- Вращением датчика добиться момента выключения сигнальных огней и отметить положение корпуса сенсора относительно картера метками, нанесенными мелом. Для проверки используется контрольная лампа с внешним источником питания, которая подключается к контактам реверса.
- Подсоединить лампу к оставшимся контактам и медленно закрутить корпус до момента включения нити накала. Отметить положение мелом на кожухе сенсора и картере коробки.
- Установить переключатель в промежуточное положение между найденными позициями. При корректной регулировке при переводе рычага в позицию R (движение назад) будет включаться светотехника на корме машины, а при положениях P и N станет доступна возможность запуска мотора.
Не горят фонари заднего хода: причины, ремонт
Как отремонтировать парктроник — – автомобильный журнал Предохранитель ПТФ находится в главном отсеке, на схеме блока обозначен цифрой 10. Его мощность 20 А.
